Quadrilocale in vendita

Cinisello Balsamo, Via Giovanni Verga - Campo Dei Fiori
€ 259.000
4 locali 4 locali
140 Mq 140 Mq
2 bagni 2 bagni

Quadrilocale in vendita

Cinisello Balsamo, Via Giovanni Verga - Campo Dei Fiori

Descrizione annuncio

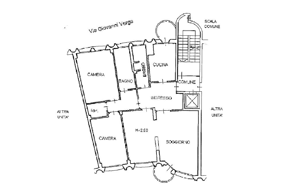
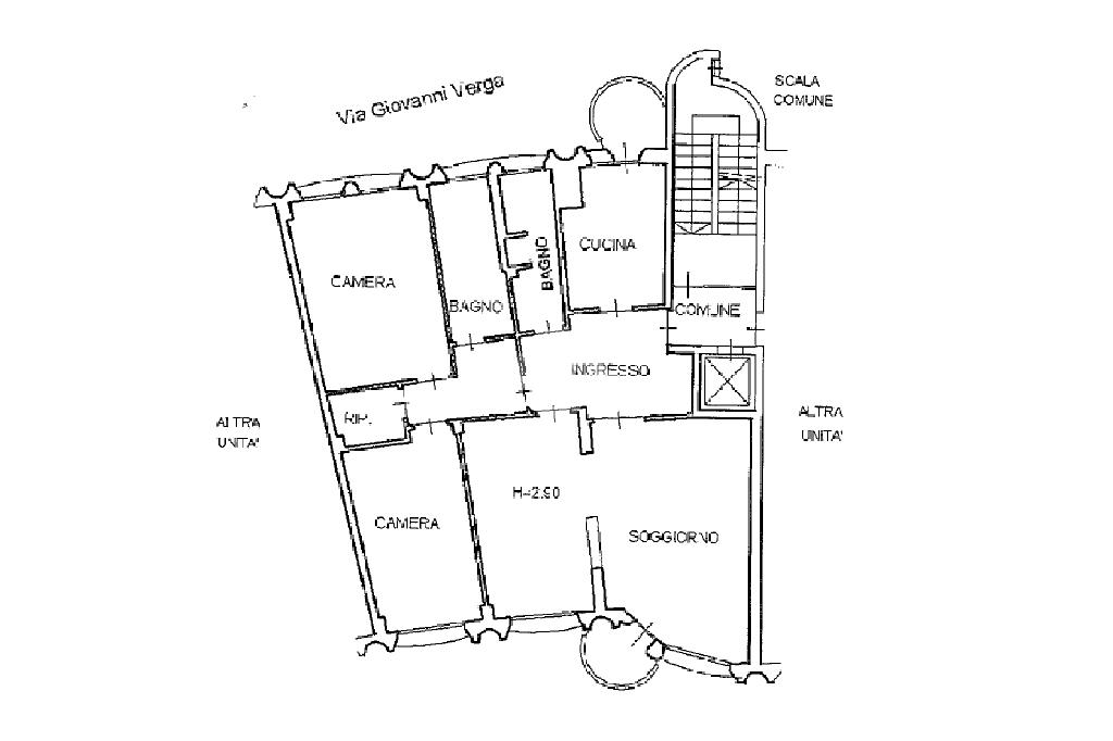
Cinisello Balsamo, nella tranquilla località di Campo dei Fiori al confine con Cusano Milanino ed il Parco Nord si propone in vendita un ampio appartamento signorile di circa 140 mq. Situato all'ultimo piano di un edificio immerso nel verde e dotato di ascensore, l'immobile offre spazi ben distribuiti e luminosi. La zona giorno si compone di uno spazioso ed accogliente soggiorno e una pratica cucina abitabile, entrambi con accesso diretto a due balconi con affaccio sul verde della zona circostante. La zona notte comprende tre camere da letto spaziose e due bagni, garantendo comfort e privacy. Doppia esposizione! Le condizioni interne sono rimaste allo stato originale meta' anni 70 quindi da ristrutturare , il riscaldamento e l'acqua calda sono centralizzati. La posizione strategica consente di godere della tranquillità del quartiere, pur essendo ben collegata ai principali servizi e vie di comunicazione. Per qualsiasi informazione potete contattarci al . Effettuiamo valutazioni gratuite del vostro immobile anche al solo scopo informativo.

Mostra tutto

Nelle vicinanze

Trasporto pubblico Trasporto pubblico
Cormano-Cusano Milanino
Cormano-Cusano Milanino
1,9 Km
Milano Bruzzano
Milano Bruzzano
2,7 Km
1° Maggio (Cinisello Balsamo)
1° Maggio (Cinisello Balsamo)
1,5 Km
Gramsci (Cinisello Balsamo)
Gramsci (Cinisello Balsamo)
1,5 Km
Via Tiziano - Via Primavera (Cinisello Balsamo)
Via Tiziano - Via Primavera (Cinisello Balsamo)
90 m
Ricariche auto elettriche Ricariche auto elettriche
U2 Supermercato Cinisello Balsamo | EnelX
330 m
Eneldrive Esselunga Cusano Milanino
890 m
EnelX EVA+ IP Cormano Via Cadorna
1,4 Km
BeCharge Aeroporto di Bresso
1,8 Km
BeCharge Municipio di Bresso
1,8 Km
Scuole Scuole
Scuola Elementare Statale Giuseppe Garibaldi
340 m
Scuola primaria paritaria Maria Ausiliatrice
360 m
Scuola secondaria di primo grado paritaria Papa Luciani
360 m
Istituto Scolastico Maria Ausiliatrice
380 m
Scuola media statale Guglielmo Marconi
410 m
Farmacia Farmacia
Farmacia Comunale n. 3
240 m
Comunale n. 7
580 m
Farmacia Paltrinieri
670 m
Farmacia Comunale
890 m
Dottor Moretti
930 m
Ospedali Ospedali
Ospedale Bassini
1,6 Km
Multimedica
2,4 Km
Ospedale città di Sesto San Giovanni
2,7 Km
Supermercati Supermercati
U2
320 m
Punto Simply
650 m
Erboristeria domani
810 m
Esselunga
850 m
Il Gigante
870 m
Negozi Negozi
Casa del Pane
250 m
Caleffi
470 m
Negozi
670 m
Bonanomi
700 m
Liberi dal Glutine
710 m
Bar Bar
Il Milanino
580 m
Fish Corner
750 m
Bacco Tabacco Caffè
990 m
Il Glicine
1,1 Km
Fantasy
1,1 Km
Ristoranti Ristoranti
Only Meat
220 m
Da Giovannello
300 m
La Casareccia
350 m
Bube
540 m
Il Volo
550 m
Mostra tutto

Caratteristiche

Rif.:
61137829
Piano:
7 di 7 con ascensore (ultimo Piano)
Balconi:
2
Camere da letto:
3
Arredamento:
Assente
Condizionamento:
Assente
Mostra tutto
Prezzo Prezzo
€ 259.000
Rata mutuo Rata mutuo
€ 1.230 / mese
Spese annue Spese annue
€ 3.500
Proponi il tuo prezzoProponi il tuo prezzo

Classe Energetica

F
F
F
F
F
F
F
F
F
EP globale non rinnovabile:
201.74 kW h/m² anno
EP globale rinnovabile:
0.00 kW h/m² anno
EP invernale del fabbricato:
EP estiva del fabbricato:
Anno di costruzione:
1975
Riscaldamento:
Centralizzato
Tipo impianto:
A radiatori
Tipo alimentazione:
Metano

Ti interessa visionare l'immobile?

Fissa un appuntamento  Fissa un appuntamento

Richiedi informazioni

Clicca su Leggi per aprire l'informativa
* Questi campi sono obbligatori

Calcola il tuo mutuo

Semplice e senza impegno
Anticipo

( % )
Mutuo

( % )

pochi semplici passi

inserisci i tuoi dati
Questionario completato
Grazie per aver richiesto un appuntamento senza impegno con un nostro Consulente del Credito e Assicurativo.

Hai inserito correttamente tutti i dati necessari e a breve riceverai una e-mail con un link da convalidare per inviare i tuoi dati.
Affiliato
Studio Marconi D.I.
Via Marconi, 133 20092 Cinisello Balsamo (MI)

Il nostro staff


  • Fabrizio Cicanese
    Affiliato
Via Marconi, 133 20092 Cinisello Balsamo (MI)
Zona: Cinisello Balsamo-Centro-Campo Dei Fiori
Mostra su mappa
Orari: dal lunedì al venerdì: 9.00-12.30 15.00-20.00; sabato: 9.00-12.20 15.00-18.00
Affiliato
Studio Marconi D.I.
Via Marconi, 133 20092 Cinisello Balsamo (MI)

2026 Tecnocasa Franchising S.p.A. - P. IVA 08365160152 - Via Monte Bianco 60/A 20089 Rozzano (MI). Ogni agenzia ha un proprio titolare ed è autonoma. Privacy policy | Policy utilizzo | Cookie policy